Quik House
Califon
Adam Kalkin - Quik Build LLC
DESIGNER: Adam Kalkin - Quik Build LLC BUILDER: Adam Kalkin - Quik Build LLC BUILD DATE: 2009
LOCATION: Califon, New Jersey, United States PHOTO CREDITS: Peter Aaron/OTTO RATING: 4 Stars.
Quik House is a pioneering example of shipping container architecture designed by Adam Kalkin, the founder of Quik Build LLC. Located in Califon, New Jersey, this project is a testament to the creative potential of shipping containers in building sustainable and modern homes. Quik House blends industrial materials with contemporary design, creating a stylish and energy-efficient living space that challenges traditional residential architecture.
Build Method
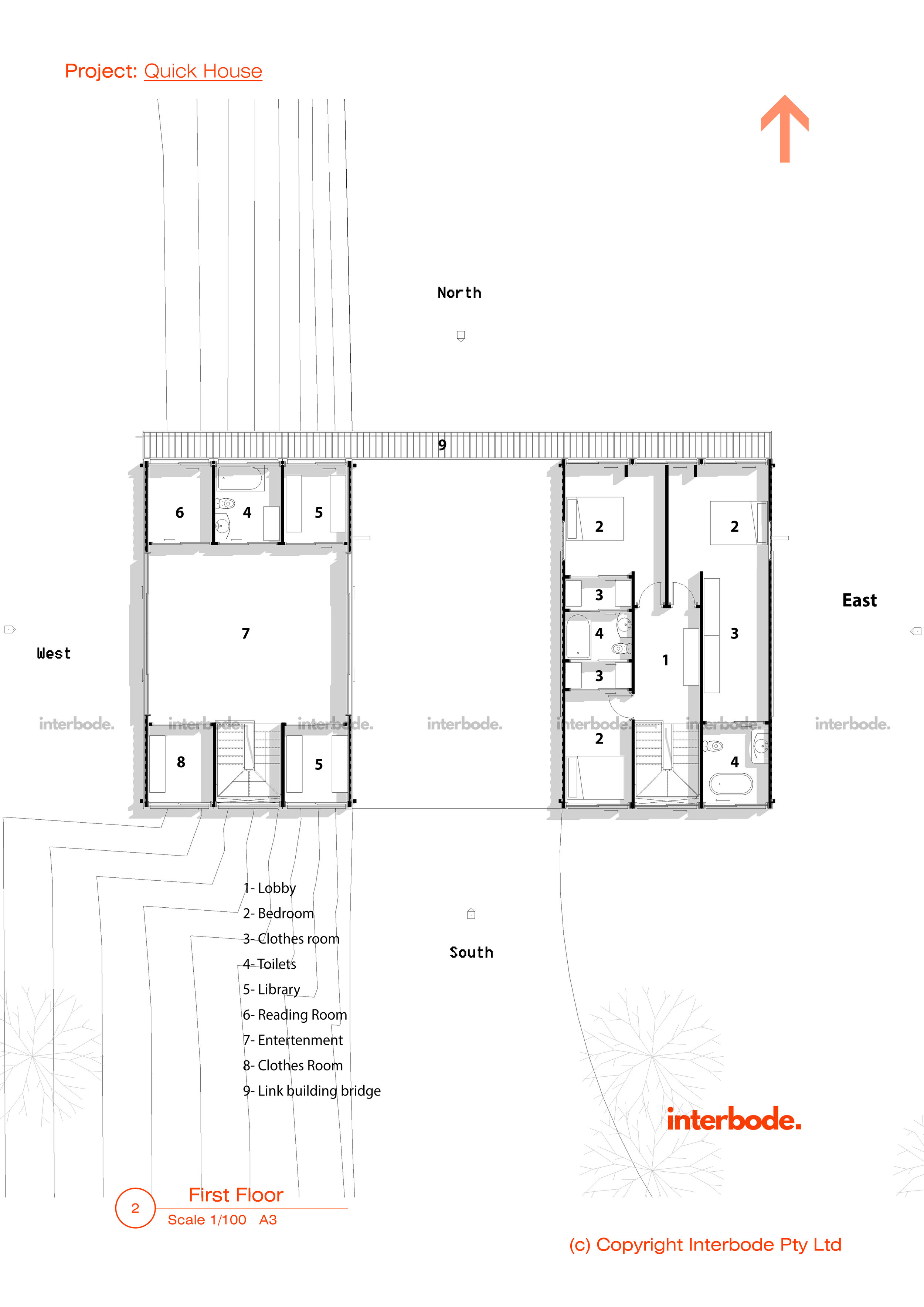
The Quik House is constructed using a series of repurposed shipping containers arranged to form a spacious, modern home. The design features a distinctive open-plan layout, with large floor-to-ceiling windows that allow natural light to flood the interiors. The containers are stacked and arranged to create different zones within the home, including living spaces, private rooms, and outdoor terraces.
The modular design of the Quik House allows for future expansion, while the efficient use of materials reduces environmental impact. The home’s exterior combines the raw aesthetic of industrial shipping containers with modern cladding and landscaping, helping it blend into the natural surroundings.
Internally, the use of sustainable materials such as recycled timber and eco-friendly insulation enhances the home’s environmental credentials. The home also incorporates energy-efficient systems, including solar panels and advanced HVAC, making it a highly sustainable choice for modern living.
Interbode Thoughts
Quik House is an innovative and practical example of how shipping containers can be transformed into high-quality, sustainable housing. The open-plan design and use of large windows create a bright and airy interior, while the modular nature of the containers allows for flexibility and future growth. We appreciate the focus on sustainability, from the materials used to the energy-efficient systems, which make Quik House a standout project in the world of container architecture.
This project demonstrates how cargotecture can be both functional and stylish, offering an alternative to traditional building methods while maintaining modern living standards.
QUIK HOUSE DESIGNS
BUILD OR BUY
Stack. Designed for sites with gradients, 2x 40ft (12m) and 2 × 20ft (6m) shipping containers are combined in an ode to the Grillagh Water House.
View. Designed for sites with decent gradients but equally at home on level land, 1 x 40ft (12) and 2 × 20ft (6m) shipping containers are combined in a perfect union to create the feel of an amply proportioned 1 Bedroom home or holiday getaway.
Nest. If you are looking for something different - this is it. Our Nest units are un-apologetically unusual. 2 x 40ft shipping containers form a very special space - a roof top terrace and lower level deck with spa + fire pit.
BOX is a double unit 2X 12M (20ft) High Cube Shipping containers design suitable for a single small cabin use complete with kitchenette and bathroom in both Grid and Off Grid configurations and with 1 Solar roof option.
Price includes GST
Heli is a double unit 2X 12M (20ft) High Cube Shipping containers design suitable for flat sites/site needing to elevate in order to obtain views.
Roam is a single unit 12M (40ft) High Cube + 6M (20ft) High Cube Shipping container design suitable for a small residence use complete with 2 bathrooms. Service module designs for Off Grid use are available.
POD2 is a single unit 12M (20ft) High Cube Shipping container design suitable for a single bedroom/office use complete with small kitchenette and bathroom shown in both Grid and Off Grid configurations and with 3 Solar roof options.
POD1 is a single unit 12M (20ft) High Cube Shipping container design suitable for a single bedroom/office use complete with bathroom (not kitchen) shown in both Grid and Off Grid configurations and with 2 Solar roof options. If you are looking for a single container with kitchenette design please see POD2
BBQ is a single unit 12M (20ft) High Cube Shipping container designed for use either a BBQ or studio office space. BBQ comes with the design for the front extension.
HUB is a single unit 12M (20ft) High Cube Shipping container designed for use as the Kitchen and Bathroom module in conjunction with our BED unit for glamping style use.